No Records Found
Sorry, no records were found. Please adjust your search criteria and try again.
Google Map Not Loaded
Sorry, unable to load Google Maps API.
- Profil
- Fényképek
- Térkép
- Ingatlan típusa
- Település neve
- Ingatlan mérete (m²/hektár)
- Eladó/bérelhető
- Földtípus
- Közművek elérhetősége
- Tanya esetén épület(ek) állapota
- Állattartásra alkalmas
- Mezőgazdasági épületek jelenléte
- E-mail cím
- Telefonszám
Az ingatlan cca. 10 hektár nagyságú működő gazdasági egység, több tevékenységgel, Győrtől néhány percre a Fertő-Lajta Hansági nemzeti parkban. (Lovarda, panzió, étterem)
Az ingatlan napelemes rendszerrel és napkollektorokkal, légkondicionálóval, biztonsági kamerás vagyonvédelmi- és automata öntöző rendszerrel felszerelt, ápolt parkkal, valamint 40 db autó számára bekamerázott parkolóval rendelkezik. Az épületegyüttes 2018 -ban felújítása során Lindab lemeztetőt, duplarétegű Sofa ablakokat, kétrétegű hő és hangszigetelt ajtót kapott.
A terület teljes közműves (vezetékes víz, villany, gáz).
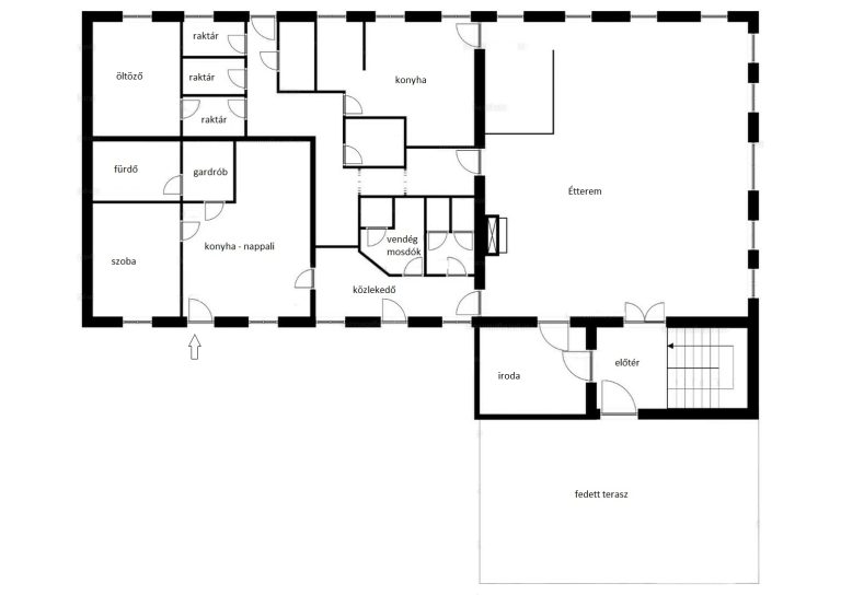
Földszint – Főépület 884 nm:
63 m2-es fedett, körbekerített-nyitott terasz (50 fő befogadására alkalmas)
213 m2-es étterem (50 fő részére)
Konyha, raktárak, szociális helyiségekkel
54 m2-es apartman menedzsmentnek (légkondicionált)
77 m2-es raktár I.
163 m2-es raktár II.357 m2-es főistálló (11 istálló (3 * 3 m) + 11 férőhely lovaknak, nyeregtárolóknak)
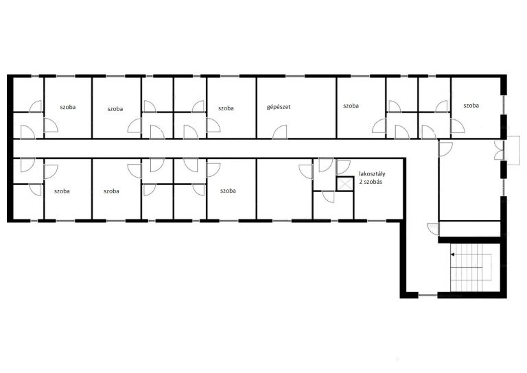
Öltözők fürdővel és WC -vel a vendégek számáraEmelet- Panzió 20 fő részére:
8 db kétágyas szoba fürdőszobával (légkondicionált)
1 családi, kétszobás – kádas fürdőszobával (légkondicionált)
Társalgó, gépészeti helyiségTovábbi épületek a területen:
2 * 180 m2-es fedett, oldalt nyitott takarmánytároló
154 m2 fedett szénatároló
36 m2 fedett szín
2 * 135 m2 fedett mobilkarám
104 m2-es személyzeti lakrész (Nappali+3 szoba, konyha, fürdőszoba)
(fűtése vegyes tüzelésű kazánnal, radiátoros hőleadással megoldott. )
966 m2-es csarnok/fedeles lovarda, magasított nézőtérrel, tégla oldalfallal, acél vázszerkezettel, lemeztetővel
25 m2-es rendezvénybüfé faház
2 versenypálya 60 * 45 m és 30 *70 m
Új istálló I. 7 boksz 154 m2 Új istálló II. 14 boksz és egy nyerges 9 angol boksz fából, fedett terasszal és kifutóvalA pályák és a fedeles lovarda/csarnok automata öntözőrendszerrel ellátottak, mely működéséhez a vizet a 72 m mély fúrt kút szolgáltatja, bevizsgált, iható vízzel.
Elkülönített karámok villanypásztorral 8000 m2
A pályák között van egy cca. 500 m2-es tó, halakkal.
Vizét a talajvíz adja, és a pályák közötti ipari létesítmények tűzi víztározójaként is funkcionál.Az ingatlan irányára 2 M EUR, amely tartalmazza a komplex működő, minden lehetséges engedéllyel rendelkező létesítményt, ingóságokkal, személyzettel, gépparkkal… stb.
Céges vásárlás történik, így a folyamatos bevétel biztosítva van az első naptól kezdve.
Távolságok: Győr: 10 km, Autópálya: 4 km, Bécs repülőtér 116 km, Budapest 120 km
Javaslok egy személyes megtekintést, állok rendelkezésre,
Hartmann-né Viki
Tel.: + 36 20 481 33 69
iroda@ugyvedhazakgyor.huNo Records Found
Sorry, no records were found. Please adjust your search criteria and try again.
Google Map Not Loaded
Sorry, unable to load Google Maps API.
- Távolság a legközelebbi településtől (km): 10
10 Ha
- Eladó
- Legelő
- Rét
- Egyéb
Művelési ág:- Művelt
- Víz
- Villany
- Gáz
- Lakható
- IgenMilyen állatok tartására alkalmas az ingatlan (ha alkalmas):
LOVAK
- Istálló
- Pajta
- Tároló
- Fedeles lovarda
- Egyéb



























